Územný plán pre obec Červený Kláštor
Hlavičkový obrázok

Územný plán Obce Červený Kláštor z 26.11.2025

Oznámenie o strategickom dokumente - Územný plán Obce Červený Kláštor.pdf (z dňa 26.11.2025, veľkosť 531 kB, Text oznámenia - Oznámenie /S/, zobraz)

Informácia pre verejnosť.pdf (z dňa 26.11.2025, veľkosť 131 kB, Informácia o oznámení - Oznámenie /S/, zobraz)


(©) Zdroj údajov: pre MŽP SR vytvára SAŽP v Informačnom systéme posudzovania vplyvov na životné prostredie .

Zmena a doplnok ÚPN O Červený Kláštor a Lechnica z 3.11.2017

Strategický dokument a Zmena a doplnok Červený Kláštor.pdf (z dňa 3.11.2017, veľkosť 77 kB, Text oznámenia - Oznámenie /S/, zobraz)

Strat_dokum_CK_posl_strana_s_podpisom.pdf (z dňa 3.11.2017, veľkosť 129 kB, Text oznámenia - Oznámenie /S/, zobraz)

Grafika Z a D.pdf (z dňa 3.11.2017, veľkosť 214 kB, Text oznámenia - Oznámenie /S/, zobraz)

Informácia pre verejnost ZaD O C Kláštor 10_2017.pdf (z dňa 3.11.2017, veľkosť 359 kB, Informácia o oznámení - Oznámenie /S/, zobraz)

SEA CKláštor ZaD UPN_roz.pdf (z dňa 20.9.2018, veľkosť 256 kB, Text rozhodnutia zo zisťovacieho konania - Oznámenie /S/, zobraz)


(©) Zdroj údajov: pre MŽP SR vytvára SAŽP v Informačnom systéme posudzovania vplyvov na životné prostredie .

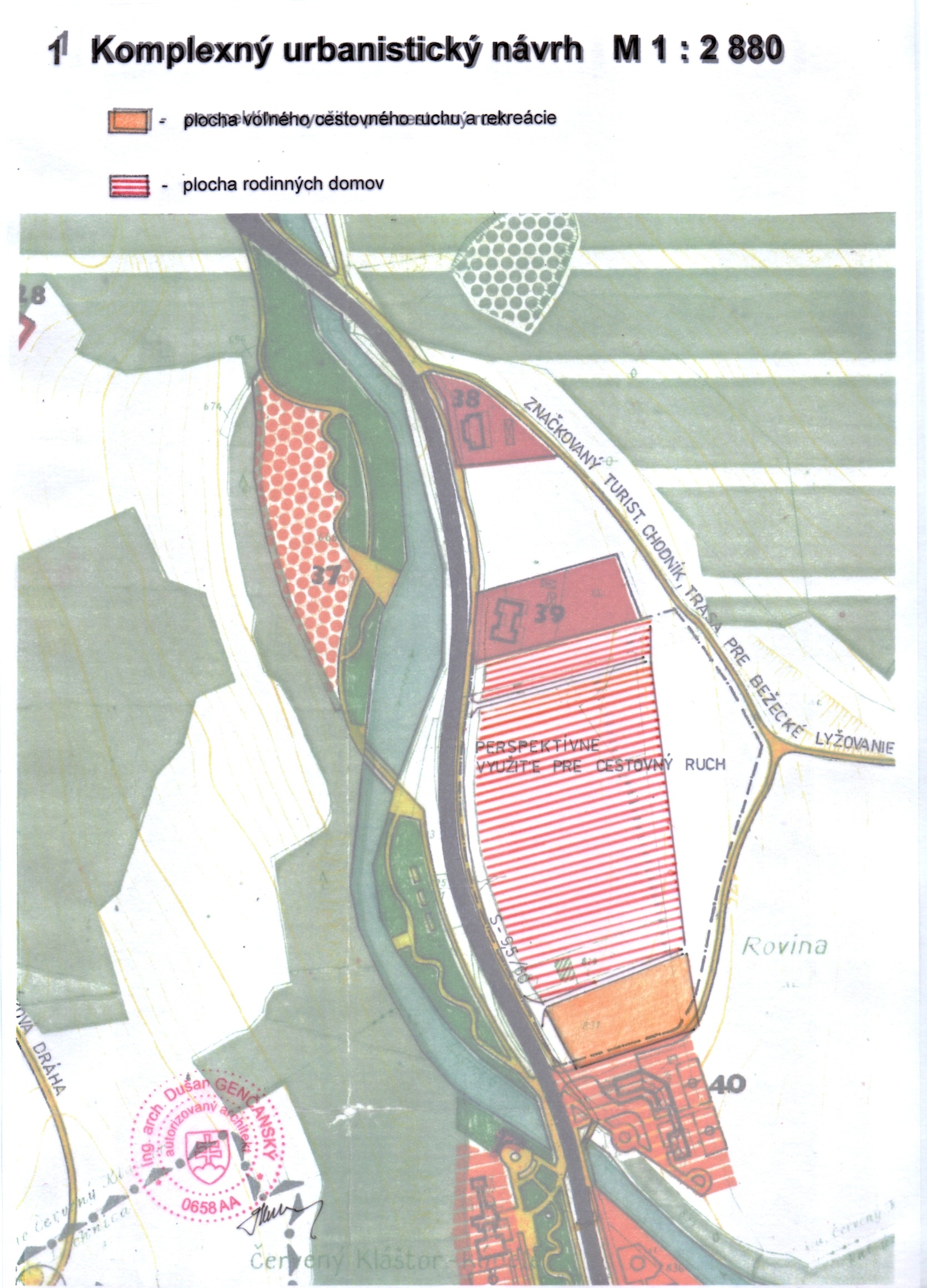
Zmena a doplnok ÚPN O Červený Kláštor a Lechnica, lokalita: „Rovina – Červený Kláštor“ z 19.5.2017

Oznámenie o strateg. dokumente_Zmena a doplnok Červený Kláštor.pdf (z dňa 19.5.2017, veľkosť 83 kB, Text oznámenia - Oznámenie /S/, zobraz)

Oznamenie o SD_Zmena a doplnok Červený Kláštor_potvrdenie.pdf (z dňa 19.5.2017, veľkosť 118 kB, Text oznámenia - Oznámenie /S/, zobraz)

Graficka časť Oznámenia o SD_Zmena a doplnok Červený Kláštor.jpg (z dňa 19.5.2017, veľkosť 981 kB, Text oznámenia - Oznámenie /S/, zobraz)

SEA CKláštor lokalita Rovina_roz.pdf (z dňa 2.2.2018, veľkosť 256 kB, Text rozhodnutia zo zisťovacieho konania - Oznámenie /S/, zobraz)


(©) Zdroj údajov: pre MŽP SR vytvára SAŽP v Informačnom systéme posudzovania vplyvov na životné prostredie .