Územný plán pre obec Tomášikovo
Hlavičkový obrázok

Územný plán obce Tomášikovo – Zmeny a doplnky č. 4 z 20.5.2025

Informácia pre verejnosť.pdf (z dňa 20.5.2025, veľkosť 198 kB, Informácia o oznámení - Oznámenie /S/, zobraz)

Oznámenie SEA_ZaD4.pdf (z dňa 20.5.2025, veľkosť 813 kB, Text oznámenia - Oznámenie /S/, zobraz)

Informativna priloha k Správe_ZaD4_záväzná časť v úplnom znení.pdf (z dňa 20.5.2025, veľkosť 5267 kB, Text strategického dokumentu, zobraz)

Správa_ZaD4.pdf (z dňa 20.5.2025, veľkosť 3232 kB, Text strategického dokumentu, zobraz)

Výkres 01_ZaD4.pdf (z dňa 20.5.2025, veľkosť 634 kB, Text strategického dokumentu, zobraz)

Výkres 02_podklad_platný ÚPN.pdf (z dňa 20.5.2025, veľkosť 2329 kB, Text strategického dokumentu, zobraz)

Výkres 02_priesvitka_ZaD4.pdf (z dňa 20.5.2025, veľkosť 159 kB, Text strategického dokumentu, zobraz)

Výkres 02_ZaD4.pdf (z dňa 20.5.2025, veľkosť 1145 kB, Text strategického dokumentu, zobraz)

Výkres 03_ZaD4.pdf (z dňa 20.5.2025, veľkosť 961 kB, Text strategického dokumentu, zobraz)

Výkres 04_ZaD4.pdf (z dňa 20.5.2025, veľkosť 982 kB, Text strategického dokumentu, zobraz)

Výkres 05_ZaD4.pdf (z dňa 20.5.2025, veľkosť 710 kB, Text strategického dokumentu, zobraz)

Výkres 06_ZaD4.pdf (z dňa 20.5.2025, veľkosť 917 kB, Text strategického dokumentu, zobraz)


(©) Zdroj údajov: pre MŽP SR vytvára SAŽP v Informačnom systéme posudzovania vplyvov na životné prostredie .

Územný plán obce Tomášikovo - Zmeny a doplnky č. 1/2016 z 22.7.2016

Tomasikovo ZaD 12016 Oznámenie o strateg.dok..pdf (z dňa 25.7.2016, veľkosť 983 kB, Text oznámenia - Oznámenie /S/, zobraz)

(z dňa 14.9.2016, veľkosť 90 kB, Informácia o oznámení - Oznámenie /S/, zobraz)

Tomasikovo ZaD 12016 Vykres 1.jpg (z dňa 2.8.2016, veľkosť 8042 kB, Text oznámenia - Oznámenie /S/, zobraz)

Tomasikovo ZaD 12016 Vykres 2.jpg (z dňa 2.8.2016, veľkosť 11536 kB, Text oznámenia - Oznámenie /S/, zobraz)

Tomasikovo ZaD 12016 Vykres 3.jpg (z dňa 2.8.2016, veľkosť 10176 kB, Text oznámenia - Oznámenie /S/, zobraz)

Tomasikovo ZaD 12016 Vykres 4.jpg (z dňa 2.8.2016, veľkosť 10211 kB, Text oznámenia - Oznámenie /S/, zobraz)

Tomasikovo ZaD 12016 Vykres 5.jpg (z dňa 2.8.2016, veľkosť 7575 kB, Text oznámenia - Oznámenie /S/, zobraz)

Tomasikovo ZaD 12016 Vykres 6.jpg (z dňa 2.8.2016, veľkosť 9781 kB, Text oznámenia - Oznámenie /S/, zobraz)

Tomasikovo ZaD 12016 Text.pdf (z dňa 2.8.2016, veľkosť 4030 kB, Text oznámenia - Oznámenie /S/, zobraz)

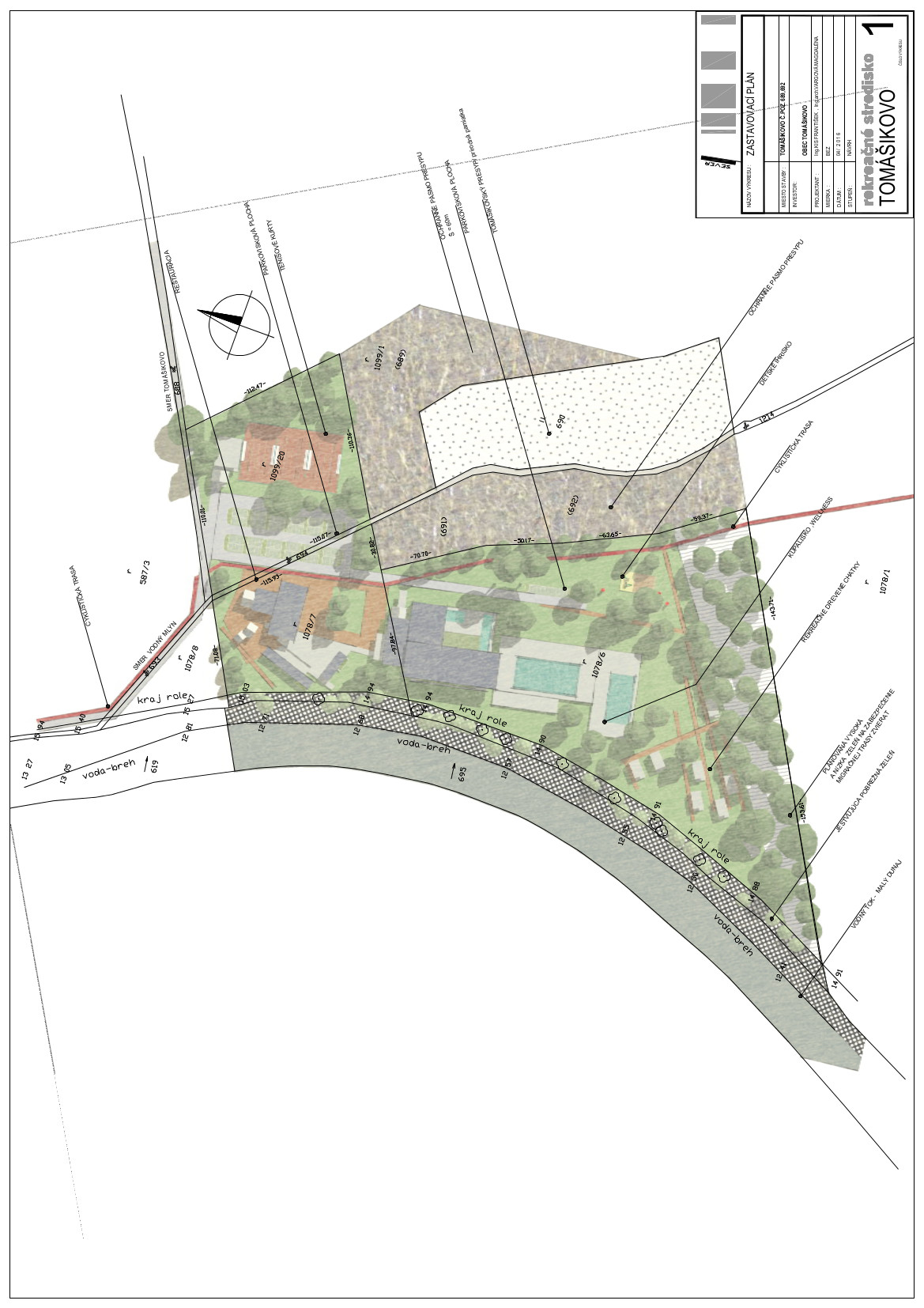
Priloha 1 graficka - Zastavovaci plan rekreacneho strediska.jpg (z dňa 2.8.2016, veľkosť 304 kB, Text oznámenia - Oznámenie /S/, zobraz)

Priloha 2 textova - Zastavovaci plan rekreacneho strediska.pdf (z dňa 2.8.2016, veľkosť 81 kB, Text oznámenia - Oznámenie /S/, zobraz)

Rozh. - ÚPN Tomášikovo - ZaD č. 1_2016.pdf (z dňa 17.3.2017, veľkosť 1695 kB, Text rozhodnutia zo zisťovacieho konania - Oznámenie /S/, zobraz)


(©) Zdroj údajov: pre MŽP SR vytvára SAŽP v Informačnom systéme posudzovania vplyvov na životné prostredie .

Územný plán obce Tomášikovo - Zmeny a doplnky č. 1/2016 z 22.7.2016

Tomasikovo ZaD 12016 Oznámenie o strateg.dok..pdf (z dňa 25.7.2016, veľkosť 983 kB, Text oznámenia - Oznámenie /S/, zobraz)

(z dňa 14.9.2016, veľkosť 90 kB, Informácia o oznámení - Oznámenie /S/, zobraz)

Tomasikovo ZaD 12016 Vykres 1.jpg (z dňa 2.8.2016, veľkosť 8042 kB, Text oznámenia - Oznámenie /S/, zobraz)

Tomasikovo ZaD 12016 Vykres 2.jpg (z dňa 2.8.2016, veľkosť 11536 kB, Text oznámenia - Oznámenie /S/, zobraz)

Tomasikovo ZaD 12016 Vykres 3.jpg (z dňa 2.8.2016, veľkosť 10176 kB, Text oznámenia - Oznámenie /S/, zobraz)

Tomasikovo ZaD 12016 Vykres 4.jpg (z dňa 2.8.2016, veľkosť 10211 kB, Text oznámenia - Oznámenie /S/, zobraz)

Tomasikovo ZaD 12016 Vykres 5.jpg (z dňa 2.8.2016, veľkosť 7575 kB, Text oznámenia - Oznámenie /S/, zobraz)

Tomasikovo ZaD 12016 Vykres 6.jpg (z dňa 2.8.2016, veľkosť 9781 kB, Text oznámenia - Oznámenie /S/, zobraz)

Tomasikovo ZaD 12016 Text.pdf (z dňa 2.8.2016, veľkosť 4030 kB, Text oznámenia - Oznámenie /S/, zobraz)

Priloha 1 graficka - Zastavovaci plan rekreacneho strediska.jpg (z dňa 2.8.2016, veľkosť 304 kB, Text oznámenia - Oznámenie /S/, zobraz)

Priloha 2 textova - Zastavovaci plan rekreacneho strediska.pdf (z dňa 2.8.2016, veľkosť 81 kB, Text oznámenia - Oznámenie /S/, zobraz)

Rozh. - ÚPN Tomášikovo - ZaD č. 1_2016.pdf (z dňa 17.3.2017, veľkosť 1695 kB, Text rozhodnutia zo zisťovacieho konania - Oznámenie /S/, zobraz)


(©) Zdroj údajov: pre MŽP SR vytvára SAŽP v Informačnom systéme posudzovania vplyvov na životné prostredie .

„Územný plán obce Tomášikovo – Zmeny a doplnky č. 1/2016“ z 21.1.2016

Tomasikovo ZaD 12016 Oznámenie o strateg.dok..pdf (z dňa 21.1.2016, veľkosť 601 kB, Text oznámenia - Oznámenie /S/, zobraz)

Tomasikovo ZaD 12016 Vykres 1.jpg (z dňa 21.1.2016, veľkosť 10839 kB, Text oznámenia - Oznámenie /S/, zobraz)

Tomasikovo ZaD 12016 Vykres 2.jpg (z dňa 21.1.2016, veľkosť 12502 kB, Text oznámenia - Oznámenie /S/, zobraz)

Tomasikovo ZaD 12016 Vykres 3.jpg (z dňa 21.1.2016, veľkosť 3252 kB, Text oznámenia - Oznámenie /S/, zobraz)

Tomasikovo ZaD 12016 Vykres 4.jpg (z dňa 21.1.2016, veľkosť 3351 kB, Text oznámenia - Oznámenie /S/, zobraz)

Tomasikovo ZaD 12016 Vykres 5.jpg (z dňa 21.1.2016, veľkosť 3377 kB, Text oznámenia - Oznámenie /S/, zobraz)

Tomasikovo ZaD 12016 Vykres 6.jpg (z dňa 21.1.2016, veľkosť 3214 kB, Text oznámenia - Oznámenie /S/, zobraz)

Tomasikovo ZaD 12016 Text.pdf (z dňa 21.1.2016, veľkosť 2460 kB, Text oznámenia - Oznámenie /S/, zobraz)

„Územný plán obce Tomášikovo – Zmeny a doplnky c. 01_2016“.pdf (z dňa 21.1.2016, veľkosť 197 kB, Informácia o oznámení - Oznámenie /S/, zobraz)

Spät vzatie oznámenia o strategickom dokumente.pdf (z dňa 18.4.2016, veľkosť 227 kB, Dôvod ukončenia posudzovania - Záver /S/, zobraz)


(©) Zdroj údajov: pre MŽP SR vytvára SAŽP v Informačnom systéme posudzovania vplyvov na životné prostredie .