Územný plán pre obec Zohor
Hlavičkový obrázok

Program hospodárskeho rozvoja a sociálneho rozvoja obce Zohor na roky 2024 – 2033 z 23.10.2024

OZNÁMENIE O STRATEGICKOM DOKUMENTE Zohor.pdf (z dňa 23.10.2024, veľkosť 507 kB, Text oznámenia - Oznámenie /S/, zobraz)

PHRSR 2024-2033 Zohor.pdf (z dňa 23.10.2024, veľkosť 3837 kB, Text strategického dokumentu, zobraz)

sprava PHRSR.pdf (z dňa 23.10.2024, veľkosť 216 kB, Text strategického dokumentu, zobraz)

Informácia PHRSR obce Zohor.pdf (z dňa 23.10.2024, veľkosť 105 kB, Informácia o oznámení - Oznámenie /S/, zobraz)

Rozhodnutie.pdf (z dňa 14.1.2025, veľkosť 336 kB, Text rozhodnutia zo zisťovacieho konania - Oznámenie /S/, zobraz)


(©) Zdroj údajov: pre MŽP SR vytvára SAŽP v Informačnom systéme posudzovania vplyvov na životné prostredie .

Územný plán obce Zohor - Zmeny a doplnky č. 9 z 8.4.2024

Oznámenie o strateg dokumente_ZaD9.pdf (z dňa 8.4.2024, veľkosť 625 kB, Text oznámenia - Oznámenie /S/, zobraz)

Informácia ÚPO Zohor - zmeny a doplnky č. 9.pdf (z dňa 8.4.2024, veľkosť 427 kB, Informácia o oznámení - Oznámenie /S/, zobraz)

Výkres 8 ZaD9.pdf (z dňa 8.4.2024, veľkosť 1897 kB, Text strategického dokumentu, zobraz)

Výkres 7 ZaD9.pdf (z dňa 8.4.2024, veľkosť 2084 kB, Text strategického dokumentu, zobraz)

Výkres 6 ZaD9.pdf (z dňa 8.4.2024, veľkosť 2181 kB, Text strategického dokumentu, zobraz)

Výkres 5 ZaD9.pdf (z dňa 8.4.2024, veľkosť 2033 kB, Text strategického dokumentu, zobraz)

Výkres 4 ZaD9.pdf (z dňa 8.4.2024, veľkosť 2061 kB, Text strategického dokumentu, zobraz)

Výkres 3 ZaD9.pdf (z dňa 8.4.2024, veľkosť 2123 kB, Text strategického dokumentu, zobraz)

Výkres 2 ZaD9.pdf (z dňa 8.4.2024, veľkosť 2066 kB, Text strategického dokumentu, zobraz)

Výkres 1 ZaD9.pdf (z dňa 8.4.2024, veľkosť 962 kB, Text strategického dokumentu, zobraz)

Správa_ZaD9.pdf (z dňa 8.4.2024, veľkosť 1037 kB, Text strategického dokumentu, zobraz)

Priesvitka ZaD9 na výkres 2.pdf (z dňa 8.4.2024, veľkosť 606 kB, Text strategického dokumentu, zobraz)

Podklad platný ÚPN výkres 2.pdf (z dňa 8.4.2024, veľkosť 3345 kB, Text strategického dokumentu, zobraz)

Rozhodnutie 150524.pdf (z dňa 15.5.2024, veľkosť 2763 kB, Text rozhodnutia zo zisťovacieho konania - Oznámenie /S/, zobraz)


(©) Zdroj údajov: pre MŽP SR vytvára SAŽP v Informačnom systéme posudzovania vplyvov na životné prostredie .

"Územný plán zóny Zohor - lokalita B10" z 2.10.2023

Oznámenie o strateg dokumente zóna B10 Zohor.pdf (z dňa 2.10.2023, veľkosť 819 kB, Text oznámenia - Oznámenie /S/, zobraz)

Informatívna príloha k Oznámeniu SEA_Problémový výkres.jpg (z dňa 2.10.2023, veľkosť 8995 kB, Text oznámenia - Oznámenie /S/, zobraz)

Informácia Územný plán zóny Zohor - lokalita B10.pdf (z dňa 2.10.2023, veľkosť 424 kB, Informácia o oznámení - Oznámenie /S/, zobraz)

Oznámenie o strateg dokumente zóna B10 Zohor.pdf (z dňa 2.10.2023, veľkosť 819 kB, Text strategického dokumentu, zobraz)

Informatívna príloha k Oznámeniu SEA_Problémový výkres.jpg (z dňa 2.10.2023, veľkosť 8995 kB, Text strategického dokumentu, zobraz)

Rozhodnutie vydané v zisťovacom konaní.pdf (z dňa 24.10.2023, veľkosť 367 kB, Text rozhodnutia zo zisťovacieho konania - Oznámenie /S/, zobraz)


(©) Zdroj údajov: pre MŽP SR vytvára SAŽP v Informačnom systéme posudzovania vplyvov na životné prostredie .

Územný plán obce Zohor – Zmeny a doplnky č. 8 z 11.8.2021

Zohor ZaD 8 Oznámenie o strateg dokumente.pdf (z dňa 11.8.2021, veľkosť 281 kB, Text oznámenia - Oznámenie /S/, zobraz)

Informativna priloha Zohor ZaD 8.pdf (z dňa 11.8.2021, veľkosť 2292 kB, Text strategického dokumentu, zobraz)

Zohor Platny UPN vykres 2 podklad.pdf (z dňa 11.8.2021, veľkosť 1876 kB, Text strategického dokumentu, zobraz)

Zohor ZaD 8 Text.pdf (z dňa 11.8.2021, veľkosť 1020 kB, Text strategického dokumentu, zobraz)

Zohor ZaD 8 Vykres 1.pdf (z dňa 11.8.2021, veľkosť 832 kB, Text strategického dokumentu, zobraz)

Zohor ZaD 8 Vykres 2 priesvitka.pdf (z dňa 11.8.2021, veľkosť 315 kB, Text strategického dokumentu, zobraz)

Zohor ZaD 8 Vykres 3.pdf (z dňa 11.8.2021, veľkosť 1486 kB, Text strategického dokumentu, zobraz)

Zohor ZaD 8 Vykres 4.pdf (z dňa 11.8.2021, veľkosť 1386 kB, Text strategického dokumentu, zobraz)

Zohor ZaD 8 Vykres 5.pdf (z dňa 11.8.2021, veľkosť 1388 kB, Text strategického dokumentu, zobraz)

Zohor ZaD 8 Vykres 6.pdf (z dňa 11.8.2021, veľkosť 1461 kB, Text strategického dokumentu, zobraz)

Zohor ZaD 8 Vykres 7.pdf (z dňa 11.8.2021, veľkosť 1446 kB, Text strategického dokumentu, zobraz)

Zohor ZaD 8 Vykres 8.pdf (z dňa 11.8.2021, veľkosť 1368 kB, Text strategického dokumentu, zobraz)

Informácia Zmeny a doplnky č. 8 Zohor.pdf (z dňa 11.8.2021, veľkosť 137 kB, Informácia o oznámení - Oznámenie /S/, zobraz)

Rozhodnutie zo zisťovacieho konania zverejnené dňa 21.10.2021.pdf (z dňa 21.10.2021, veľkosť 339 kB, Text rozhodnutia zo zisťovacieho konania - Oznámenie /S/, zobraz)


(©) Zdroj údajov: pre MŽP SR vytvára SAŽP v Informačnom systéme posudzovania vplyvov na životné prostredie .

Územný plán obce Zohor – Zmeny a doplnky č. 7 z 14.8.2019

Zohor ZaD 7 Oznámenie o strateg dokumente.pdf (z dňa 14.8.2019, veľkosť 750 kB, Text oznámenia - Oznámenie /S/, zobraz)

Informácia Zmeny a doplnky c. 7 Zohor.pdf (z dňa 14.8.2019, veľkosť 198 kB, Informácia o oznámení - Oznámenie /S/, zobraz)

Zohor ZaD 7 Vykres 8.pdf (z dňa 14.8.2019, veľkosť 1988 kB, Text strategického dokumentu, zobraz)

Zohor ZaD 7 Vykres 7.pdf (z dňa 14.8.2019, veľkosť 2223 kB, Text strategického dokumentu, zobraz)

Zohor ZaD 7 Vykres 6.pdf (z dňa 14.8.2019, veľkosť 2359 kB, Text strategického dokumentu, zobraz)

Zohor ZaD 7 Vykres 5.pdf (z dňa 14.8.2019, veľkosť 2171 kB, Text strategického dokumentu, zobraz)

Zohor ZaD 7 Vykres 4.pdf (z dňa 14.8.2019, veľkosť 2152 kB, Text strategického dokumentu, zobraz)

Zohor ZaD 7 Vykres 3.pdf (z dňa 14.8.2019, veľkosť 2319 kB, Text strategického dokumentu, zobraz)

Zohor ZaD 7 Vykres 2.pdf (z dňa 14.8.2019, veľkosť 2256 kB, Text strategického dokumentu, zobraz)

Zohor ZaD 7 Vykres 1.pdf (z dňa 14.8.2019, veľkosť 822 kB, Text strategického dokumentu, zobraz)

Zohor ZaD 7 Text.pdf (z dňa 14.8.2019, veľkosť 1358 kB, Text strategického dokumentu, zobraz)

Rozhodnutie zo zisťovacieho konania zverejnené dňa 14.10.2019.pdf (z dňa 14.10.2019, veľkosť 2037 kB, Text rozhodnutia zo zisťovacieho konania - Oznámenie /S/, zobraz)


(©) Zdroj údajov: pre MŽP SR vytvára SAŽP v Informačnom systéme posudzovania vplyvov na životné prostredie .

Územný plán obce Zohor – Zmeny a doplnky č. 6 z 18.12.2018

Zohor ZaD 6 Oznámenie o strateg dokumente.pdf (z dňa 18.12.2018, veľkosť 746 kB, Text oznámenia - Oznámenie /S/, zobraz)

Zohor ZaD 6 Text.pdf (z dňa 18.12.2018, veľkosť 1309 kB, Text strategického dokumentu, zobraz)

Zohor ZaD 6 Vykres 2.pdf (z dňa 18.12.2018, veľkosť 3021 kB, Text strategického dokumentu, zobraz)

Zohor ZaD 6 Vykres 1.pdf (z dňa 18.12.2018, veľkosť 1402 kB, Text strategického dokumentu, zobraz)

Zohor ZaD 6 Vykres 3.pdf (z dňa 18.12.2018, veľkosť 2465 kB, Text strategického dokumentu, zobraz)

Zohor ZaD 6 Vykres 4.pdf (z dňa 18.12.2018, veľkosť 2220 kB, Text strategického dokumentu, zobraz)

Zohor ZaD 6 Vykres 5.pdf (z dňa 18.12.2018, veľkosť 2235 kB, Text strategického dokumentu, zobraz)

Zohor ZaD 6 Vykres 6.pdf (z dňa 18.12.2018, veľkosť 2310 kB, Text strategického dokumentu, zobraz)

Zohor ZaD 6 Vykres 7.pdf (z dňa 18.12.2018, veľkosť 2118 kB, Text strategického dokumentu, zobraz)

Zohor ZaD 6 Vykres 8.pdf (z dňa 18.12.2018, veľkosť 2291 kB, Text strategického dokumentu, zobraz)

Informácia Zmeny a doplnky c. 6 Zohor.pdf (z dňa 19.12.2018, veľkosť 198 kB, Informácia o oznámení - Oznámenie /S/, zobraz)

Rozhodnutie zo zisťovacieho konania zverejnené dňa 04.03.2019.pdf (z dňa 4.3.2019, veľkosť 11279 kB, Text rozhodnutia zo zisťovacieho konania - Oznámenie /S/, zobraz)


(©) Zdroj údajov: pre MŽP SR vytvára SAŽP v Informačnom systéme posudzovania vplyvov na životné prostredie .

Územný plán obce Zohor – Zmeny a doplnky č. 4 z 28.2.2017

Zohor ZaD4 Vykres 8.pdf (z dňa 28.2.2017, veľkosť 1107 kB, Text oznámenia - Oznámenie /S/, zobraz)

Zohor ZaD4 Vykres 7.pdf (z dňa 28.2.2017, veľkosť 1653 kB, Text oznámenia - Oznámenie /S/, zobraz)

Zohor ZaD4 Vykres 6.pdf (z dňa 28.2.2017, veľkosť 1447 kB, Text oznámenia - Oznámenie /S/, zobraz)

Zohor ZaD4 Vykres 5.pdf (z dňa 28.2.2017, veľkosť 1322 kB, Text oznámenia - Oznámenie /S/, zobraz)

Zohor ZaD4 Vykres 4.pdf (z dňa 28.2.2017, veľkosť 1362 kB, Text oznámenia - Oznámenie /S/, zobraz)

Zohor ZaD4 Vykres 3.pdf (z dňa 28.2.2017, veľkosť 1624 kB, Text oznámenia - Oznámenie /S/, zobraz)

Zohor ZaD4 Vykres 2.pdf (z dňa 28.2.2017, veľkosť 2119 kB, Text oznámenia - Oznámenie /S/, zobraz)

Zohor ZaD4 Vykres 1.pdf (z dňa 28.2.2017, veľkosť 1981 kB, Text oznámenia - Oznámenie /S/, zobraz)

Zohor ZaD4 Text.pdf (z dňa 28.2.2017, veľkosť 911 kB, Text oznámenia - Oznámenie /S/, zobraz)

Zohor ZaD 4 Oznámenie o strateg dokumente.pdf (z dňa 28.2.2017, veľkosť 704 kB, Text oznámenia - Oznámenie /S/, zobraz)

Informácia úradná tabula.pdf (z dňa 28.2.2017, veľkosť 197 kB, Informácia o oznámení - Oznámenie /S/, zobraz)

Rozhodnutie zo zistovacieho konania zverejnené 14.06.2017.pdf (z dňa 14.6.2017, veľkosť 467 kB, Text rozhodnutia zo zisťovacieho konania - Oznámenie /S/, zobraz)


(©) Zdroj údajov: pre MŽP SR vytvára SAŽP v Informačnom systéme posudzovania vplyvov na životné prostredie .

„Územný plán obce Zohor – Zmeny a doplnky č. 5“ z 16.11.2016

Informácia úradná tabula.pdf (z dňa 16.11.2016, veľkosť 197 kB, Informácia o oznámení - Oznámenie /S/, zobraz)

Zohor ZaD 5 Oznámenie o strateg dokumente.pdf (z dňa 16.11.2016, veľkosť 757 kB, Text oznámenia - Oznámenie /S/, zobraz)

Zohor ZaD 5 Text.pdf (z dňa 16.11.2016, veľkosť 4676 kB, Text oznámenia - Oznámenie /S/, zobraz)

Zohor ZaD 5 Vykres 2.jpg (z dňa 16.11.2016, veľkosť 2159 kB, Text oznámenia - Oznámenie /S/, zobraz)

Zohor ZaD 5 Vykres 3.jpg (z dňa 16.11.2016, veľkosť 2355 kB, Text oznámenia - Oznámenie /S/, zobraz)

Zohor ZaD 5 Vykres 4.jpg (z dňa 16.11.2016, veľkosť 2574 kB, Text oznámenia - Oznámenie /S/, zobraz)

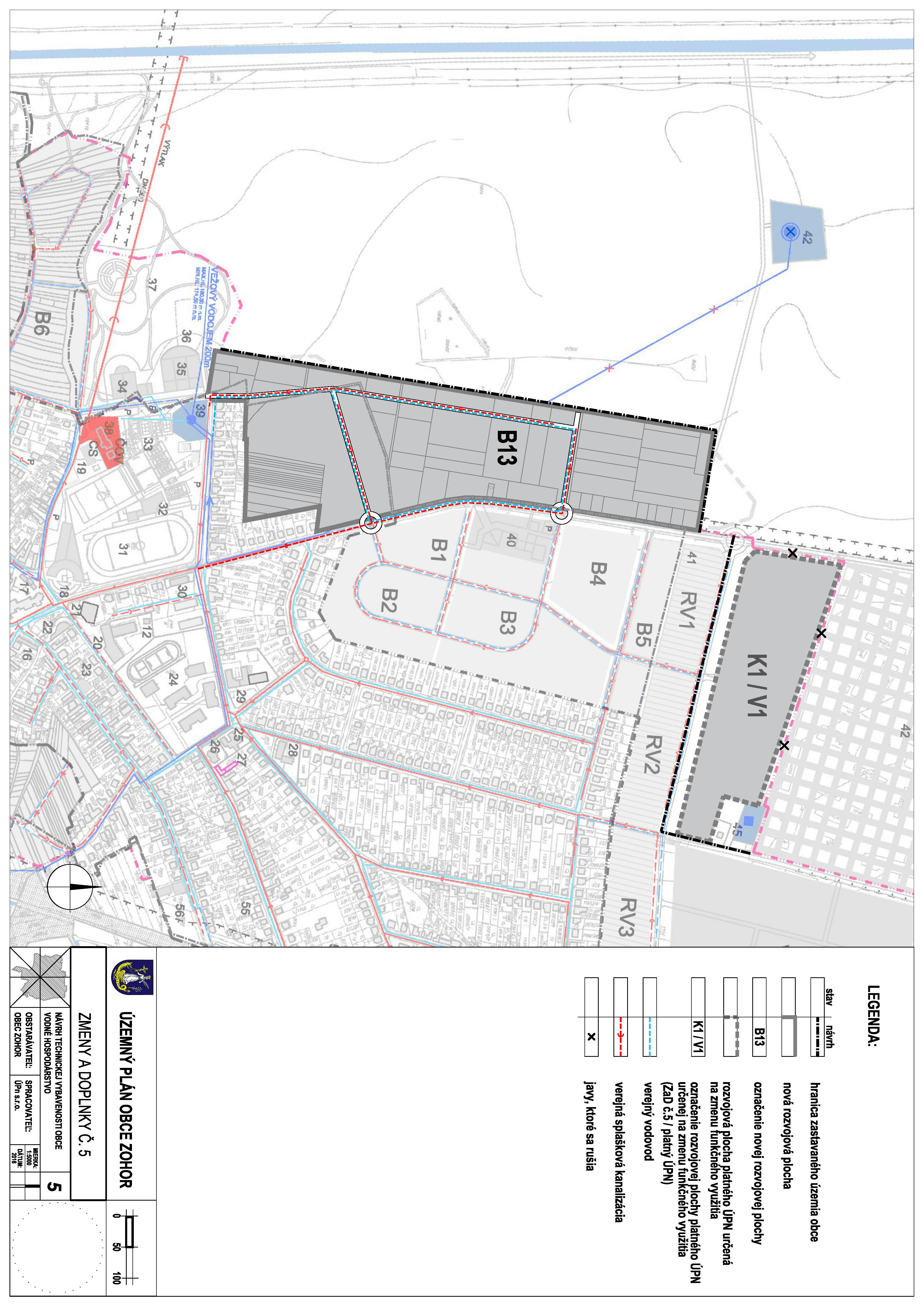
Zohor ZaD 5 Vykres 5.jpg (z dňa 16.11.2016, veľkosť 1477 kB, Text oznámenia - Oznámenie /S/, zobraz)

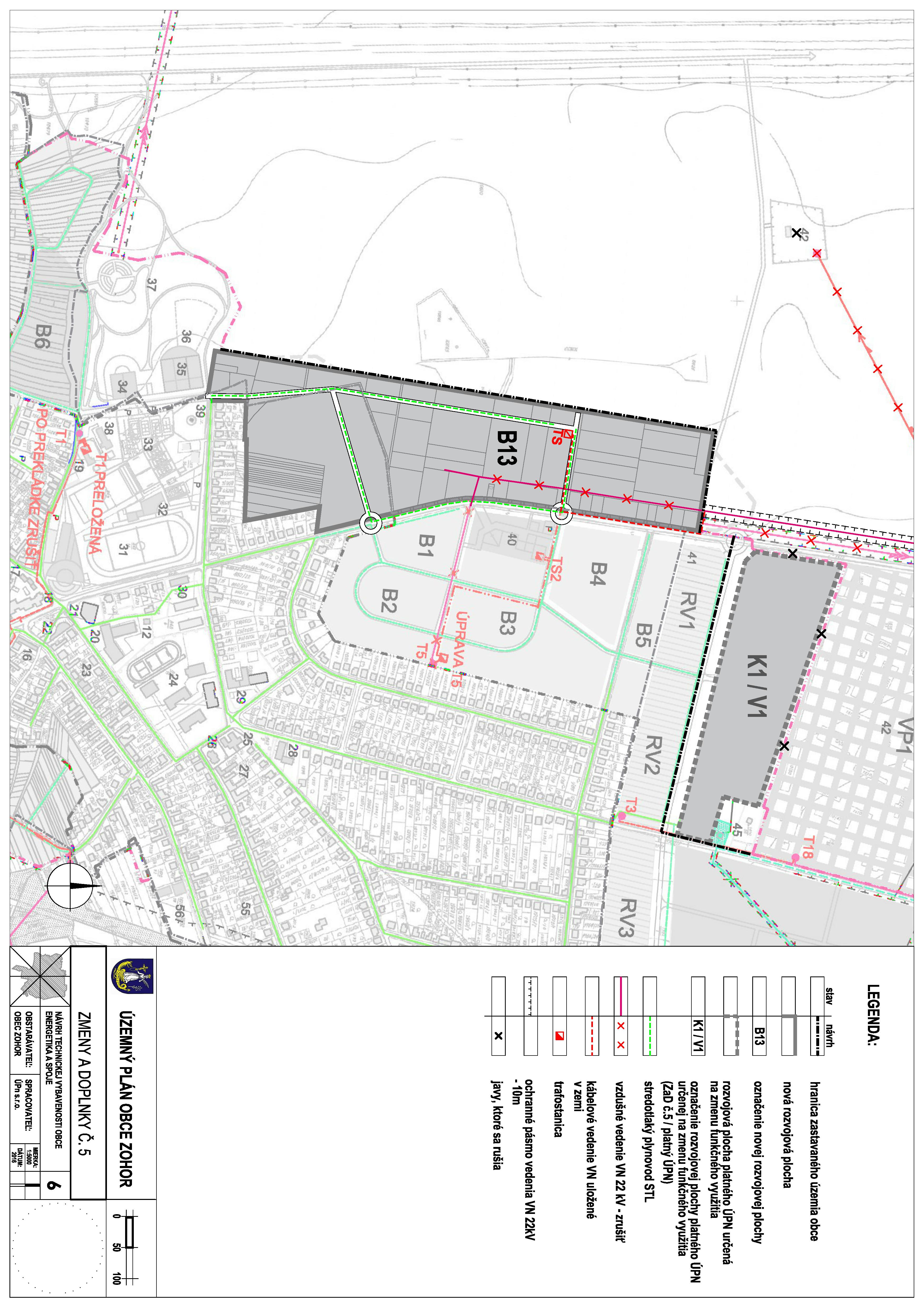
Zohor ZaD 5 Vykres 7.jpg (z dňa 16.11.2016, veľkosť 2040 kB, Text oznámenia - Oznámenie /S/, zobraz)

Zohor ZaD 5 Vykres 6.jpg (z dňa 16.11.2016, veľkosť 1517 kB, Text oznámenia - Oznámenie /S/, zobraz)

Zohor ZaD 5 Vykres 8.jpg (z dňa 16.11.2016, veľkosť 1483 kB, Text oznámenia - Oznámenie /S/, zobraz)

Rozhodnutie zo zisťovacieho konania .pdf (z dňa 23.1.2017, veľkosť 8876 kB, Text rozhodnutia zo zisťovacieho konania - Oznámenie /S/, zobraz)


(©) Zdroj údajov: pre MŽP SR vytvára SAŽP v Informačnom systéme posudzovania vplyvov na životné prostredie .

Program hospodárskeho rozvoja a sociálneho rozvoja obce Zohor na roky 2015 - 2024 z 11.11.2015

OZNÁMENIE O STRATEGICKOM DOKUMENTE ZOHOR.pdf (z dňa 11.11.2015, veľkosť 9655 kB, Text oznámenia - Oznámenie /S/, zobraz)

PHRSR Zohor 2015 - 2024.pdf (z dňa 11.11.2015, veľkosť 3590 kB, Text oznámenia - Oznámenie /S/, zobraz)

Oznámenie .pdf (z dňa 11.11.2015, veľkosť 185 kB, Text oznámenia - Oznámenie /S/, zobraz)

Informácia SEA Ma.pdf (z dňa 11.11.2015, veľkosť 198 kB, Informácia o oznámení - Oznámenie /S/, zobraz)

Rozhodnutie zo zistovacieho konania zverejnené zo dna 11.05.2016.pdf (z dňa 13.5.2016, veľkosť 363 kB, Text rozhodnutia zo zisťovacieho konania - Oznámenie /S/, zobraz)


(©) Zdroj údajov: pre MŽP SR vytvára SAŽP v Informačnom systéme posudzovania vplyvov na životné prostredie .